天星村日敦社

Architecture is often understood as theorganisation of fixed space. At Solhymn Collective, however, building tookshape more as an ongoing process ofnegotiating relationships.

Solhymn Collective was founded by a family of artistsengaged in early childhood education. Its three foundersare respectively responsible for kindergarten teachertraining, kindergarten interior design, and the developmentofeducational products. More than twenty people workand live within the same environment, where teaching,design, research and daily life are continuously intertwined.

The building responds directly to this structure ofrelationships. At its centre is a collective workspace, 4.8metres high and sunk into the ground. Around it arearranged a reading corridor, discussion areas, displayspaces, training classrooms, and a communal table used forboth conversation and shared meals. A kitchen designedfor more than twenty people to cook simultaneouslyallows work and domestic life to intersect naturally ineveryday use. The second floor contains the living quarters,connected to the woodland by a ramp.

▲ 图一 三个方案的坡道变化 - 一层平面图 ©CLAB

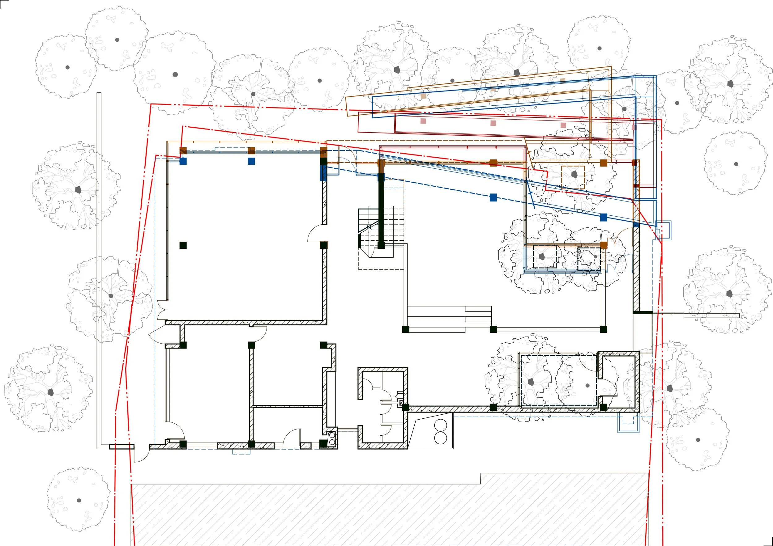
A second relationship emerges between building andtrees. Twenty-three mature trees stood on the site, five ofthem within the building footprint. Rather than treatingthem as obstacles to be removed, the design understoodthem as an existing spatial order already present on thesite. A frame structure was therefore adopted, allowingthe column grid to negotiate continuously with the trees.The workspace was lowered into the earth, bringing dailyactivity closer to trunks and ground. It was precisely thisdecision that allowed the project to retain its essentialspatial order through later, substantial adjustments.The most dramatic transformation, however, took placeduring construction.

In the original design, the ramp connecting the living quarters was divided into three sections. The first twopassed through the woodland beyond the main building,conceived as a gentler route for users as they graduallygrow older in the future. This arrangement was approvedduring planning, yet later rejected during constructiondocumentation, when disagreement arose over whetherthe ramp could extend beyond the official buildingboundary. The implemented scheme was thereforerevised into two sections, attached tightly to the main structure.

Yet after the foundations were completed, the projectwas again judged to exceed the permitted constructionrange because of discrepancies in the planning coordinatesystem. The newly confirmed red line cut close to thebuilding itself, placing the original spatial organisation atrisk of substantial reduction.

After prolonged negotiation, the building volume wasreshaped along the revised boundary, and constructioncontinued through adjustments to the structural grid.The ramp returned to its original three-part logic, butits first two sections could no longer be included withinthe scope of government-funded construction. Whatwas ultimately built was only the third section: a rampextending from the building and ending in mid-air.Its missing first two sections will be completed later bySolhymn Collective themselves. For this creative familyteam, now entering later life, the unfinished extensionis both apractical necessityanda condition for the nexttwenty years of shared living and work.The building therefore does not present itself as a fullycompleted object, but as a construction still in progress.The suspended ramp is both the result of present circumstances and a possibility left open for future building to continue.

▲ 图2 建筑剖面图 ©CLAB

项目地点 温江区,成都市,四川省

项目规模 550㎡

项目类型 办公建筑